| Fuel Tank Complete | Scale drawing of the new fuel tank in VISIO format (two pages) |
| Fuel Tank page 1 | A "gif" file of the tank for those who do not have Visio |
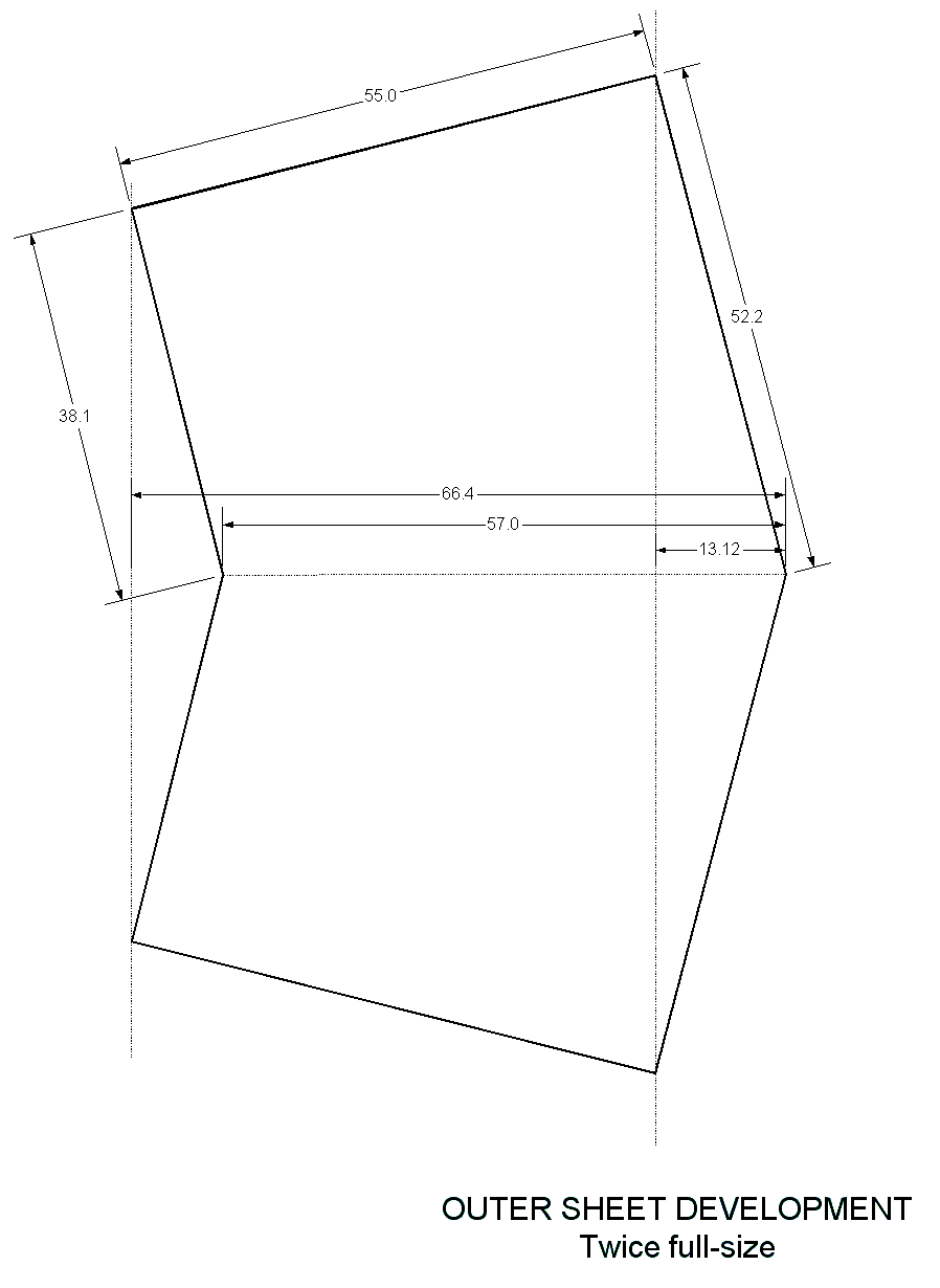
| Fuel Tank page 2 | A "gif" file of the tank for those who do not have Visio |
| Plan | This is the plan from April 1976 Aeromodeller (repeated March 1986) that was used to construct the aircraft described in these pages. |